NSE斗式提升機產品介紹:
NSE系列斗式提升機適用于提升粉狀和小顆粒狀物料,如:水泥、煤粉、破碎后較細的礦石等,這類輸送機廣泛用于輸送量較大的粉狀和小顆粒狀物料的提升。
NSE系列板鏈式提升機共有九個基本型號:NSE100、NSE200、NSE300、NSE400、NSE500、NSE600、NSE700、NSE800、NSE1000,每種型號可根據輸送物料的不同,選擇不同的提升速度,最大提升速度70m/min。我公司還可根據用戶要求設計各基本型號之間的擴展型號。

一、提升機的特點:
1、輸送能力大:該系列提升機是國內提升機中相近橫截面尺寸輸送量最大的提升機,提升量為100~1000m3/h。
2、提升范圍廣:這類提升機對物料的種類、特性要求少。不但能提升一般粉狀、小顆粒狀物料,而且可提升磨琢性較大的物料。要求物料溫度≤200℃。
3、驅動功率小:采用流入式喂料、誘導式卸料、大容量的料斗密集型布置。在物料提升時幾乎無回料和挖料現象,因此無效功率少,比環鏈提升機節省功率約30%。
4、使用壽命長:提升機的喂料采用流入式,無需用斗挖料,材料之間很少發生擠壓和碰撞現象。本機在設計時保證物料在喂料、提升機卸料時少有撒落,減少了機械磨損,采用板鏈式高強度耐磨輸送鏈,大大延長了輸送鏈和料斗的使用壽命。正常使用下,輸送鏈使用壽命超過3年。
5、提升高度高:該提升機運行平穩,并且采用板鏈式高強度耐磨輸送鏈,因此可達到較高的提升高度。在額定輸送量下,提升高度≤50m。
6、密封性好,環境污染少。
7、運行可靠性好:先進的設計原理和加工方法,保證了整機運行的可靠性,無故障時間超過2萬小時。
8、操作、維護方便,易損件少。
9、結構剛度好,精度高:機殼經壓型焊接后,剛度好且外觀漂亮。
10、綜合成本低:由于節約能耗和維護少,使用成本低。
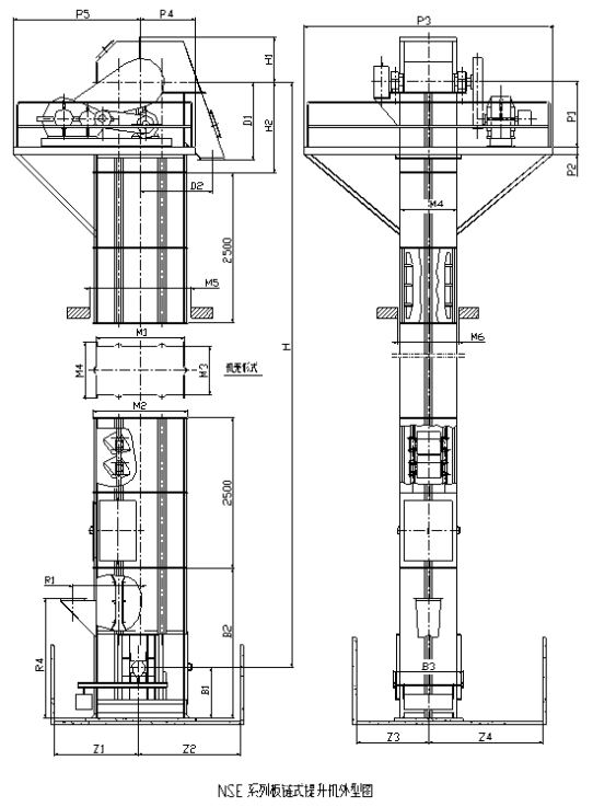
二、NSE系列斗式提升機外形尺寸圖

三、NSE斗式提升機的技術規范:
型號 | 最大提升量m3/h | 料斗容積m3/m | 運行速度m/min | 物料最大塊度(mm) | ||||
占百分比% | ||||||||
10 | 25 | 50 | 75 | 100 | ||||
NSE100 | 170 | 0.073 | 66 | 35 | 30 | 20 | 15 | 10 |
NSE200 | 220 | 0.097 | 66 | 35 | 30 | 20 | 15 | 10 |
NSE300 | 300 | 0.121 | 66 | 35 | 30 | 20 | 15 | 10 |
NSE400 | 400 | 0.157 | 66 | 50 | 40 | 30 | 25 | 20 |
NSE500 | 500 | 0.21 | 66 | 50 | 40 | 30 | 25 | 20 |
NSE600 | 600 | 0.24 | 66 | 50 | 40 | 30 | 25 | 20 |
NSE700 | 700 | 0.28 | 66 | 65 | 60 | 40 | 35 | 30 |
NSE800 | 800 | 0.32 | 66 | 65 | 60 | 40 | 35 | 30 |
NSE1000 | 1000 | 0.391 | 66 | 65 | 60 | 40 | 35 | 30 |